burger menu

Гравіс

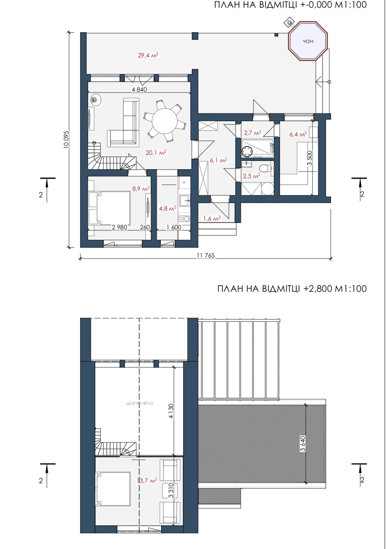
Площа — 74.5 м²

Характеристики будинку:

  • Розміри — 10.1 х 11.8 м
  • Кількість житлових кімнат — 1+житлова антресоль

    Дізнайтесь вартість будівництва по цьому проєкту

    advices-image

    Що необхідно знати перед початком будівництва. "5 порад архітектора"

    advices-image-mob
    Завантажити БЕЗКОШТОВНО