burger menu

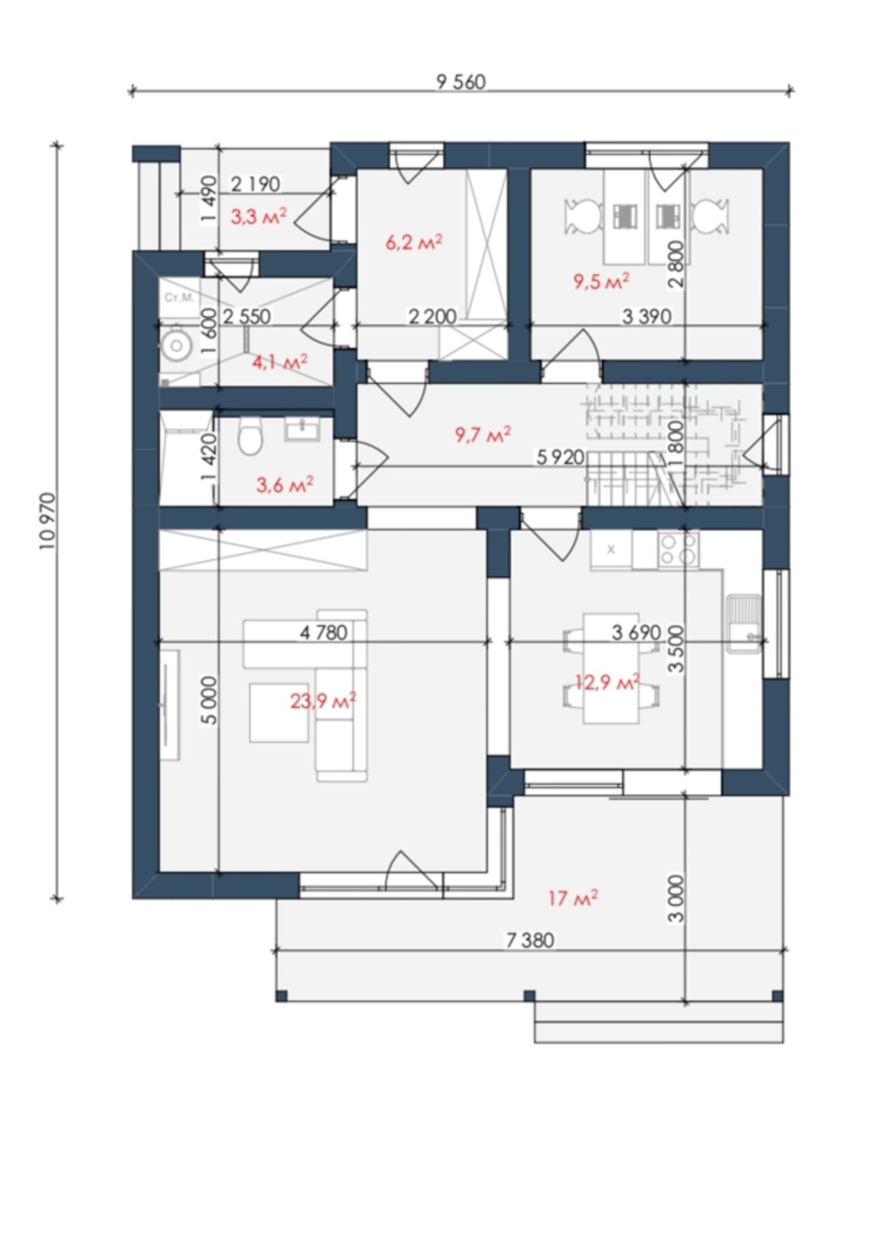
Нордіс

Площа — 147.65 м²

Характеристики будинку:

  • Розміри — 9.56 х 10.97 м
  • Кількість житлових кімнат — 3

    Дізнайтесь вартість будівництва по цьому проєкту

    advices-image

    Що необхідно знати перед початком будівництва. "5 порад архітектора"

    advices-image-mob
    Завантажити БЕЗКОШТОВНО