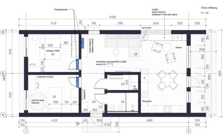
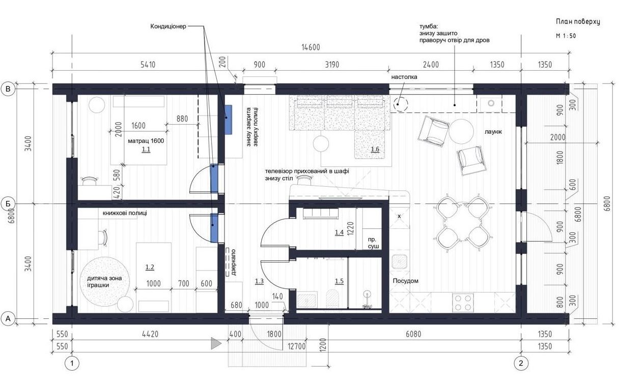
Площа — від 70 до 200 м²
Характеристики будинку:
Дізнайтесь вартість будівництва по цьому проєкту
Що необхідно знати перед початком будівництва. "5 порад архітектора"
Цікаві статті
Проекти будинків до 200 кв.м
Будівництво котеджів під ключ Львів. Що саме входить в цю функцію
Типові чи індивідуальні проекти дачних будинків – як вибрати?
Отримайте безкоштовну консультацію
Плануєте Будівництво?
Все це та багато іншого в нашій PDF інструкції