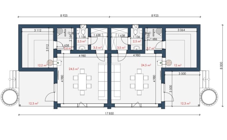
Площа — 99.9 м²
Характеристики будинку:
Дізнайтесь вартість будівництва по цьому проєкту
Що необхідно знати перед початком будівництва. "5 порад архітектора"
Цікаві статті
Проекти будинків до 100 кв.м
Індивідуальний підхід: розрахунок вартості будівництва будинку в Україні
Чому варто вибрати швидкомонтовані будинки у Львові
Отримайте безкоштовну консультацію
Плануєте Будівництво?
Все це та багато іншого в нашій PDF інструкції