burger menu

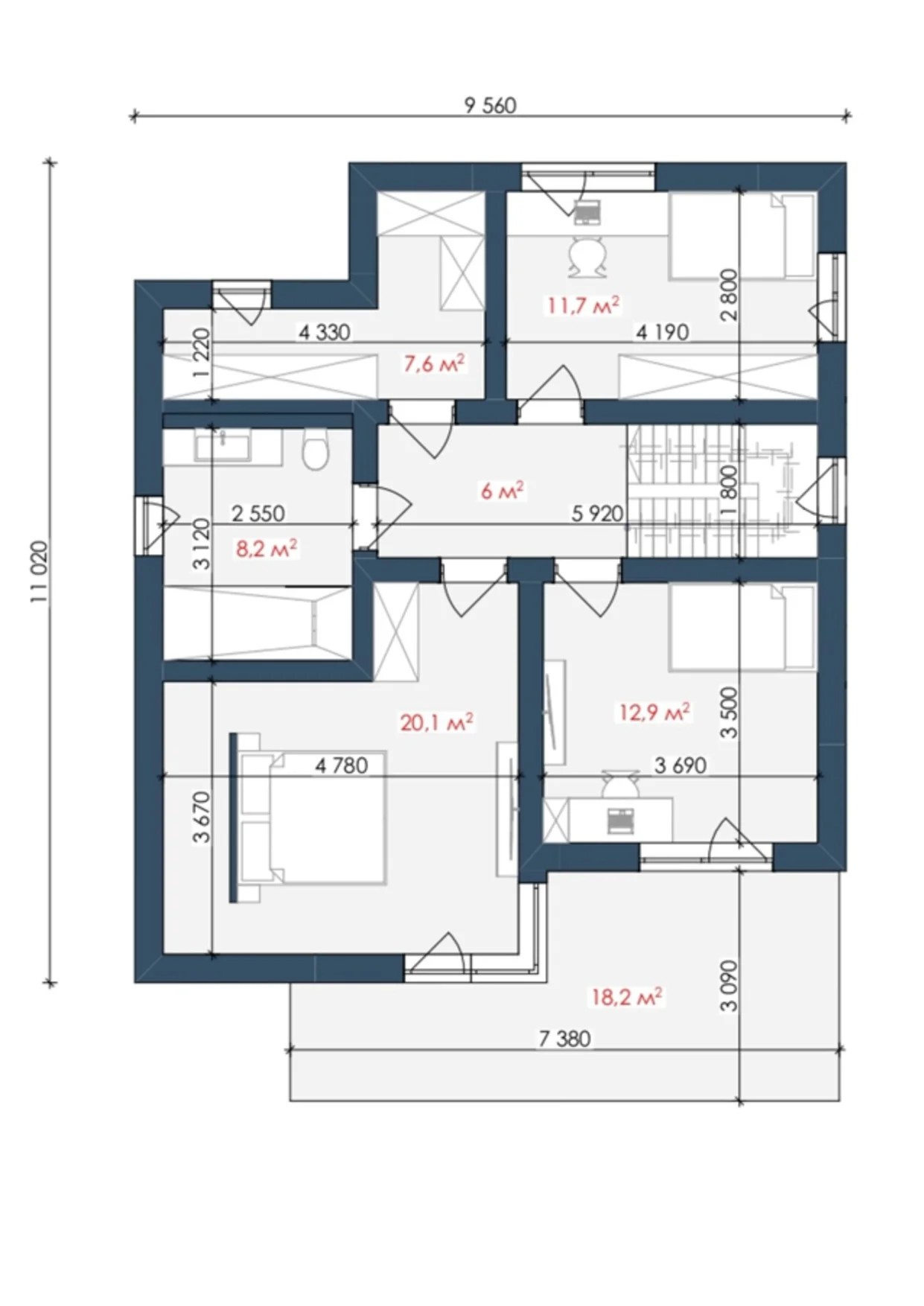
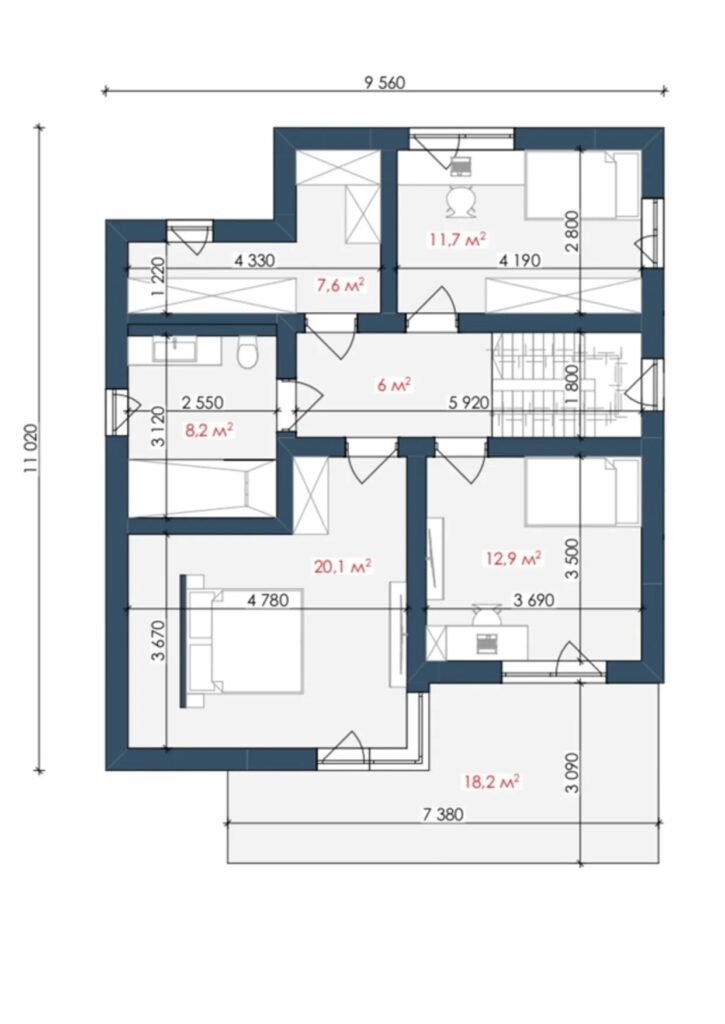
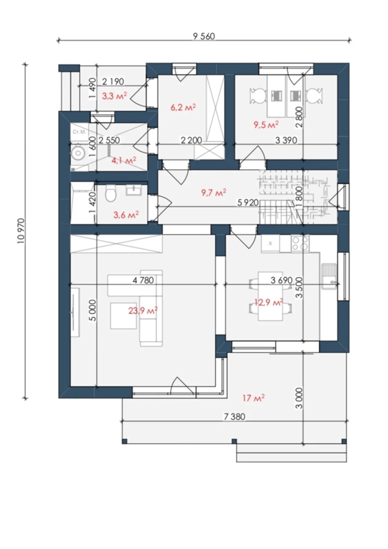
"Нордіс"

4 910 500 грн

Площа — 148 м²

Характеристики будинку:

  • Розміри — 9.56 х 10.97
  • Кількість житлових кімнат — 3

Будівництво по проекту "Нордіс"

Каркас

2 299 700 грн

Каркас+

4 910 500 грн

Під ключ

6 720 700 грн

ЕСКІЗНО-ПРОЕКТНА ДОКУМЕНТАЦІЯ

check

Фундамент

check
  • Стовпчасто-стрічковий – відповідно до проекту (середня висота цоколя – до 40 см).
  • Гравійно-піщана засипка.
  • Влаштування бетонних сходів.
  • Армована стяжка по всій площі.
  • Гідроізоляція.
  • Розведення труб каналізації (відповідно до проекту), закладні для підведення води та електромереж.

Домокомплект

check
  • Зовнішні стіни — брус січенням 150*40 мм, зовнішня обшивка плитами EGGER ОСП-3.
  • Міжповерхове перекриття — брус січенням 50*200 мм.
  • Чорнова підлога другого поверху — плити EGGER ОСП-3 / ЦСП санвузли.
  • Кроквяна система даху та перекриття — брус січенням 50*200 мм.
  • Обв’язочний брус пропитайний бітумним праймером 150*40 мм.
  • Кріпильні матеріали (комплекс).
  • Пиломатеріал, просочений антисептиком методом занурення.

Утеплення та пароізоляція

cancel
  • Утеплення зовнішніх стін — базальтова товщиною 200 мм (150 мм – між стійками каркасу, 50 мм – зі зміщенням містків холоду).
  • Утеплення даху / стелі — базальтова вата товщиною 300 мм (200 мм – між кроквами, 100 мм – зі зміщенням містків холоду).
  • Утеплення перестінків — базальтова товщиною 100-150 мм.
  • Утеплення міжповерхового перекриття — базальтова вата товщиною 150 мм (між балками).

Дах

check
  • Бітумна черепиця- IKO (колір та форма на вибір).
  • ПВХ-мембрана – Flagon Soprema SR. Товщиною – 1,5 мм. Виробництва – Італія (світло сіра) – ґанок і балкон.
  • Суцільний настил з гідроізоляцією.
  • Аератори (вентиляція підкроквяного простору).
  • Гідроізоляційна плівка Foliarex Strotex Supreme (Польща).
  • Обрешітка 25*100 мм.
  • Контррейка 40*50 мм.
  • Спецпланки.

Фасад

cancel
  • Панелі фіброцементні EPC 241.
  • Штукатурка (Ceresit, колір Texac 1).
  • Фасадне утеплення – 50 мм (мінеральна вата) в зоні штукатурки.
  • Відкоси – штукатурка.
  • Вітробар’єрна мембрана Foliarex Strotex Supreme (Польща) по периметру зовнішніх стін.
  • Водостічна система “Bryza” (Польща).
  • Підшивка виносів даху- Планкен.
  • Металеві планки даху (комплекс).
  • Металеві водовідливи під вікнами (колір відповідно до ламінації вікон).

Улаштування тераси та балконів

cancel
  • Пропитка Тікурілла Піньясол (перила та бруси).
  • Декорування колон (малюван.+шліфовка) клеєний брус.

Вікна

cancel
  • Металопластиковий профіль VEKA Softline 82.
  • Фурнітура WINK HAUS (Німеччина) – протизламна з мікроліфтом.
  • Двокамерний склопакет 44 мм з подвійним енергозберігаючим напиленням.
  • Утеплений підставковий профіль.
  • Зовнішня ламінація.
  • Монтаж за технологією «Теплий монтаж».

Двері

cancel
  • Двері вхідні ТМ “Страж” (модель “Proof”, Party BP, RIO S- на вибір) металеві з утепленням 70 мм.
  • Сендвіч-панель із зовнішньої сторони (оцинкована сталь з ПВХ-покриттям, екструдований пінополістирол).
  • МДФ-панель всередині (10мм із ПВХ-покриттям Vinorit).
  • Утеплена металева рама.
  • Протизламні ригелі – 4 шт.
  • Конусні петлі – 3 шт.
  • Замки Standart Mottura – 2 шт. (Італія).
  • Дотягувач дверей.

Система вентиляції

cancel
  • Вентиляційні грибки утеплені.
  • Вентиляційні грибки неутеплені.
  • Влаштування вентиляційного фанового каналу.
  • Примусова, витяжна вентиляція для кухні та ванної кімнати (окремі вентиляційні канали).
  • Природна вентиляція для технічного приміщення.

Електромережа (по будинку)

cancel
  • Кабель ВВГнг (січення – 1.5-2.5).
  • Металорукав ТМ «SCaT» (оцинкований з протяжкою).
  • Автоматика Hager.
  • Розподільний щиток Hager Volta.
  • Ввідний ПЗВ Hager.
  • Заземлення (модульне, штирьове, оцинковане) + заземлення металорукава.
  • Виводи для розеток, вимикачі (відповідно до проекту) без монтажу підрозетників.

Система опалення та водопостачання

cancel
  • Електрокотел PROTHERM 9 КВт / KOSPEL 8 КВт.
  • Бойлер Ariston 100 л.
  • Радіатори Romstal / DaVinci.
  • Терморегулятори Giacomini.
  • Рушникосушки електричні (нержавійка).
  • Розведення труб у будинку для води та каналізації (відповідно до проекту).
  • Підігрів підлоги (1-ий поверх кухня-вітальня, ванна кімната; 2-ий поверх ванна кімната)

Стяжка

cancel
  • Цементна суміш напівсуха.
  • Фіброволокно.
  • Сітка армуюча металева.
  • Екструдований пінополістирол 100 мм.
  • Демпферна стрічка.

Внутрішнє оздоблення

cancel
  • Гіпсокартон 12 мм для стін і стелі.
  • Гіпсокартон (вологостійкий) 12 мм для ванної кімнати, технічного приміщення та частково для кухні.
  • Пластикові підвіконники (колір відповідно до внутрішньої ламінації вікон).
  • Додаткові закладні підсилення для навісних кухонних меблів та телевізора.

ЕСКІЗНО-ПРОЕКТНА ДОКУМЕНТАЦІЯ

check

Фундамент

check
  • Стовпчасто-стрічковий – відповідно до проекту (середня висота цоколя – до 40 см).
  • Гравійно-піщана засипка.
  • Влаштування бетонних сходів.
  • Армована стяжка по всій площі.
  • Гідроізоляція.
  • Розведення труб каналізації (відповідно до проекту), закладні для підведення води та електромереж.

Домокомплект

check
  • Зовнішні стіни — брус січенням 150*40 мм, зовнішня обшивка плитами EGGER ОСП-3.
  • Міжповерхове перекриття — брус січенням 50*200 мм.
  • Чорнова підлога другого поверху — плити EGGER ОСП-3 / ЦСП санвузли.
  • Кроквяна система даху та перекриття — брус січенням 50*200 мм.
  • Обв’язочний брус пропитайний бітумним праймером 150*40 мм.
  • Кріпильні матеріали (комплекс).
  • Пиломатеріал, просочений антисептиком методом занурення.

Утеплення та пароізоляція

check
  • Утеплення зовнішніх стін — базальтова товщиною 200 мм (150 мм – між стійками каркасу, 50 мм – зі зміщенням містків холоду).
  • Утеплення даху / стелі — базальтова вата товщиною 300 мм (200 мм – між кроквами, 100 мм – зі зміщенням містків холоду).
  • Утеплення перестінків — базальтова товщиною 100-150 мм.
  • Утеплення міжповерхового перекриття — базальтова вата товщиною 150 мм (між балками).

Дах

check
  • Бітумна черепиця- IKO (колір та форма на вибір).
  • ПВХ-мембрана – Flagon Soprema SR. Товщиною – 1,5 мм. Виробництва – Італія (світло сіра) – ґанок і балкон.
  • Суцільний настил з гідроізоляцією.
  • Аератори (вентиляція підкроквяного простору).
  • Гідроізоляційна плівка Foliarex Strotex Supreme (Польща).
  • Обрешітка 25*100 мм.
  • Контррейка 40*50 мм.
  • Спецпланки.

Фасад

check
  • Панелі фіброцементні EPC 241.
  • Штукатурка (Ceresit, колір Texac 1).
  • Фасадне утеплення – 50 мм (мінеральна вата) в зоні штукатурки.
  • Відкоси – штукатурка.
  • Вітробар’єрна мембрана Foliarex Strotex Supreme (Польща) по периметру зовнішніх стін.
  • Водостічна система “Bryza” (Польща).
  • Підшивка виносів даху- Планкен.
  • Металеві планки даху (комплекс).
  • Металеві водовідливи під вікнами (колір відповідно до ламінації вікон).

Улаштування тераси та балконів

check
  • Пропитка Тікурілла Піньясол (перила та бруси).
  • Декорування колон (малюван.+шліфовка) клеєний брус.

Вікна

check
  • Металопластиковий профіль VEKA Softline 82.
  • Фурнітура WINK HAUS (Німеччина) – протизламна з мікроліфтом.
  • Двокамерний склопакет 44 мм з подвійним енергозберігаючим напиленням.
  • Утеплений підставковий профіль.
  • Зовнішня ламінація.
  • Монтаж за технологією «Теплий монтаж».

Двері

check
  • Двері вхідні ТМ “Страж” (модель “Proof”, Party BP, RIO S- на вибір) металеві з утепленням 70 мм.
  • Сендвіч-панель із зовнішньої сторони (оцинкована сталь з ПВХ-покриттям, екструдований пінополістирол).
  • МДФ-панель всередині (10мм із ПВХ-покриттям Vinorit).
  • Утеплена металева рама.
  • Протизламні ригелі – 4 шт.
  • Конусні петлі – 3 шт.
  • Замки Standart Mottura – 2 шт. (Італія).
  • Дотягувач дверей.

Система вентиляції

check
  • Вентиляційні грибки утеплені.
  • Вентиляційні грибки неутеплені.
  • Влаштування вентиляційного фанового каналу.
  • Примусова, витяжна вентиляція для кухні та ванної кімнати (окремі вентиляційні канали).
  • Природна вентиляція для технічного приміщення.

Електромережа (по будинку)

cancel
  • Кабель ВВГнг (січення – 1.5-2.5).
  • Металорукав ТМ «SCaT» (оцинкований з протяжкою).
  • Автоматика Hager.
  • Розподільний щиток Hager Volta.
  • Ввідний ПЗВ Hager.
  • Заземлення (модульне, штирьове, оцинковане) + заземлення металорукава.
  • Виводи для розеток, вимикачі (відповідно до проекту) без монтажу підрозетників.

Система опалення та водопостачання

cancel
  • Електрокотел PROTHERM 9 КВт / KOSPEL 8 КВт.
  • Бойлер Ariston 100 л.
  • Радіатори Romstal / DaVinci.
  • Терморегулятори Giacomini.
  • Рушникосушки електричні (нержавійка).
  • Розведення труб у будинку для води та каналізації (відповідно до проекту).
  • Підігрів підлоги (1-ий поверх кухня-вітальня, ванна кімната; 2-ий поверх ванна кімната)

Стяжка

cancel
  • Цементна суміш напівсуха.
  • Фіброволокно.
  • Сітка армуюча металева.
  • Екструдований пінополістирол 100 мм.
  • Демпферна стрічка.

Внутрішнє оздоблення

cancel
  • Гіпсокартон 12 мм для стін і стелі.
  • Гіпсокартон (вологостійкий) 12 мм для ванної кімнати, технічного приміщення та частково для кухні.
  • Пластикові підвіконники (колір відповідно до внутрішньої ламінації вікон).
  • Додаткові закладні підсилення для навісних кухонних меблів та телевізора.

ЕСКІЗНО-ПРОЕКТНА ДОКУМЕНТАЦІЯ

check

Фундамент

check
  • Стовпчасто-стрічковий – відповідно до проекту (середня висота цоколя – до 40 см).
  • Гравійно-піщана засипка.
  • Влаштування бетонних сходів.
  • Армована стяжка по всій площі.
  • Гідроізоляція.
  • Розведення труб каналізації (відповідно до проекту), закладні для підведення води та електромереж.

Домокомплект

check
  • Зовнішні стіни — брус січенням 150*40 мм, зовнішня обшивка плитами EGGER ОСП-3.
  • Міжповерхове перекриття — брус січенням 50*200 мм.
  • Чорнова підлога другого поверху — плити EGGER ОСП-3 / ЦСП санвузли.
  • Кроквяна система даху та перекриття — брус січенням 50*200 мм.
  • Обв’язочний брус пропитайний бітумним праймером 150*40 мм.
  • Кріпильні матеріали (комплекс).
  • Пиломатеріал, просочений антисептиком методом занурення.

Утеплення та пароізоляція

check
  • Утеплення зовнішніх стін — базальтова товщиною 200 мм (150 мм – між стійками каркасу, 50 мм – зі зміщенням містків холоду).
  • Утеплення даху / стелі — базальтова вата товщиною 300 мм (200 мм – між кроквами, 100 мм – зі зміщенням містків холоду).
  • Утеплення перестінків — базальтова товщиною 100-150 мм.
  • Утеплення міжповерхового перекриття — базальтова вата товщиною 150 мм (між балками).

Дах

check
  • Бітумна черепиця- IKO (колір та форма на вибір).
  • ПВХ-мембрана – Flagon Soprema SR. Товщиною – 1,5 мм. Виробництва – Італія (світло сіра) – ґанок і балкон.
  • Суцільний настил з гідроізоляцією.
  • Аератори (вентиляція підкроквяного простору).
  • Гідроізоляційна плівка Foliarex Strotex Supreme (Польща).
  • Обрешітка 25*100 мм.
  • Контррейка 40*50 мм.
  • Спецпланки.

Фасад

check
  • Панелі фіброцементні EPC 241.
  • Штукатурка (Ceresit, колір Texac 1).
  • Фасадне утеплення – 50 мм (мінеральна вата) в зоні штукатурки.
  • Відкоси – штукатурка.
  • Вітробар’єрна мембрана Foliarex Strotex Supreme (Польща) по периметру зовнішніх стін.
  • Водостічна система “Bryza” (Польща).
  • Підшивка виносів даху- Планкен.
  • Металеві планки даху (комплекс).
  • Металеві водовідливи під вікнами (колір відповідно до ламінації вікон).

Улаштування тераси та балконів

check
  • Пропитка Тікурілла Піньясол (перила та бруси).
  • Декорування колон (малюван.+шліфовка) клеєний брус.

Вікна

check
  • Металопластиковий профіль VEKA Softline 82.
  • Фурнітура WINK HAUS (Німеччина) – протизламна з мікроліфтом.
  • Двокамерний склопакет 44 мм з подвійним енергозберігаючим напиленням.
  • Утеплений підставковий профіль.
  • Зовнішня ламінація.
  • Монтаж за технологією «Теплий монтаж».

Двері

check
  • Двері вхідні ТМ “Страж” (модель “Proof”, Party BP, RIO S- на вибір) металеві з утепленням 70 мм.
  • Сендвіч-панель із зовнішньої сторони (оцинкована сталь з ПВХ-покриттям, екструдований пінополістирол).
  • МДФ-панель всередині (10мм із ПВХ-покриттям Vinorit).
  • Утеплена металева рама.
  • Протизламні ригелі – 4 шт.
  • Конусні петлі – 3 шт.
  • Замки Standart Mottura – 2 шт. (Італія).
  • Дотягувач дверей.

Система вентиляції

check
  • Вентиляційні грибки утеплені.
  • Вентиляційні грибки неутеплені.
  • Влаштування вентиляційного фанового каналу.
  • Примусова, витяжна вентиляція для кухні та ванної кімнати (окремі вентиляційні канали).
  • Природна вентиляція для технічного приміщення.

Електромережа (по будинку)

check
  • Кабель ВВГнг (січення – 1.5-2.5).
  • Металорукав ТМ «SCaT» (оцинкований з протяжкою).
  • Автоматика Hager.
  • Розподільний щиток Hager Volta.
  • Ввідний ПЗВ Hager.
  • Заземлення (модульне, штирьове, оцинковане) + заземлення металорукава.
  • Виводи для розеток, вимикачі (відповідно до проекту) без монтажу підрозетників.

Система опалення та водопостачання

check
  • Електрокотел PROTHERM 9 КВт / KOSPEL 8 КВт.
  • Бойлер Ariston 100 л.
  • Радіатори Romstal / DaVinci.
  • Терморегулятори Giacomini.
  • Рушникосушки електричні (нержавійка).
  • Розведення труб у будинку для води та каналізації (відповідно до проекту).
  • Підігрів підлоги (1-ий поверх кухня-вітальня, ванна кімната; 2-ий поверх ванна кімната)

Стяжка

check
  • Цементна суміш напівсуха.
  • Фіброволокно.
  • Сітка армуюча металева.
  • Екструдований пінополістирол 100 мм.
  • Демпферна стрічка.

Внутрішнє оздоблення

check
  • Гіпсокартон 12 мм для стін і стелі.
  • Гіпсокартон (вологостійкий) 12 мм для ванної кімнати, технічного приміщення та частково для кухні.
  • Пластикові підвіконники (колір відповідно до внутрішньої ламінації вікон).
  • Додаткові закладні підсилення для навісних кухонних меблів та телевізора.

Побудувати будинок під ключ у Львові - престижно і комфортно

Ви хочете мати красиве й довговічне житло для постійного проживання? Справжньою знахідкою для жителів нашої країни стають недорогі каркасні споруди, які відомі в усьому світі бюджетною ціною будівництва і своєю енергоефективністю. «КБК Львів» спеціалізується на зведенні таких будівель і реалізує проекти різного масштабу та складності. У нас ви зможете замовити невеликий котедж або особняк площею 100, 120 м кв. На нашому сайті представлена ціла фотогалерея побудованих нами об'єктів і можна ознайомитися з численними відгуками мешканців, дуже задоволених нашою роботою.

Вигідно й економно побудувати будинок для проживання під ключ

Існує цілий ряд причин, за якими люди вибирають будівництво каркасних будинків:

  1. Низька теплопровідність. Завдяки відмінним характеристикам ізоляційних матеріалів у кімнатах круглий рік зберігається оптимальна і комфортна для мешканців температура.
  2. Довговічність. Чіткість, точність всіх креслень конструкції та якісна сировина виготовлення гарантують тривалий експлуатаційний період будівель – не менше 80 років.
  3. Відмінна шумоізоляція. Добротний утеплювач конструкції з бруса виконує роль чудової акустичної ізоляції, і прекрасно поглинає шум для повноцінного відпочинку мешканців споруди.
  4. Екологічність та безпека. У виробництві каркасного домокомплекту використовується тільки натуральна карпатська деревина, яка обробляється спеціальними біостійкими складами. Це робить наші об’єкти пожежобезпечними і надійними.
  5. Швидкомонтованість. За допомогою заводської збірки стіни та покрівля монтуються на ділянці максимально швидко, що дозволяє отримати готове житло вже через 3-4 місяці.

Хочете знати, як може виглядати будівля вашої мрії на папері? Ви думаєте про переобладнання? Намагаєтеся вибрати між заміною або переробкою? Ознайомтеся з деякими із наших проектів, які будуються у даний час. Скоро ви зможете відправитися у власну подорож до красивого і комфортного для проживання житла у Львові!

Чи є сенс будувати будинок під ключ у Львові для незалежності та комфорту

Володіння приватним будинком під ключ із комунікаціями у Львові набагато краще, ніж не завжди комфортне проживання у міських багатоповерхівках. Така перспектива надає повну свободу, якою власник зможе насолоджуватися кожного дня.

Модернізований підхід та інноваційні розробки на будь-якому етапі дають можливість втілення найнезвичайніших ідей у каркасному будівництві як маленького дачного будиночку, так і в реалізації житла 100 м2.

На думку наших клієнтів:

  1. Це сучасний діючий підхід до забудови у Львові й області, що дозволяє отримати добре ізольований і простий в обслуговуванні котедж. Усередині вони хочуть мати теплий, легкий і просторий дім із каркасною рамою, щоб досягти сучасно-сільського характеру споруди. Їм потрібен безперешкодний потік сонячного світла з мінімальним простором для циркуляції, а кухня має бути центром спілкування у будинку.
  2. Головний вхід повинен забезпечувати захист від негоди і легкий доступ до виходу. «КБК Львів» постарається, щоб сонце ставало «сліпучим» протягом частини дня з південного боку, тому при побудові нової споруди потрібно буде продумати, як контролювати це, не блокуючи його.
  3. Крім задоволення потреб наших клієнтів і вирішення складних питань, нам також необхідно пам’ятати про будівельні рекомендації з планування, коли справа стосується дизайну і масштабу нової споруди. Сюди входить керівництво по використовуваних зовнішніх матеріалах.

КБК Львів: побудуємо будинок під ключ недорого

Наша компанія за роки своєї діяльності напрацювала велику проектну і технологічну базу недорогих каркасних будівель для мінімальних грошових і часових витрат наших замовників. Ми займаємося розробкою індивідуальних проектів під ключ, що враховують всі побажання і вимоги клієнта, або адаптуємо під вас вже готовий типовий план. Фахівці компанії забезпечують повний цикл послуг: від узгодження проектно-кошторисної документації – до внутрішніх опоряджувальних робіт і облаштування прилеглої території. Щоб дізнатися попередню ціну на майбутню споруду, зв’яжіться з нами або відвідайте нашу сторінку і самостійно зробіть розрахунки за допомогою калькулятора вартості.

Скільки коштує побудувати будинок під ключ?

Багатьох наших клієнтів цікавить питання: скільки коштує побудувати каркасне житло під ключ? Сумарна вартість житла визначається після проведення всіх підрахунків і безпосередньо залежить від таких факторів, як:

  • нестандартність планування і задуманий архітектурний стиль;
  • квадратура дерев’яної фінської будівлі під ключ;
  • клас фурнітури;
  • тип і конструкція даху;
  • поверховість;
  • кількість та якість обраних матеріалів;
  • наявність додаткових споруд.

Побудувати будинок у Львівській області під ключ – ваш найкращий вибір!

Який проект обрати – залежить тільки від вас. Наше завдання – надати докладну консультацію і допомогти визначитися із оптимальним варіантом, який буде повністю відповідати вашим планам і задумам. При цьому ціна житла буде доступною і економною. Ми не займаємося будівництвом житла з піноблоків, газобетону і цегли, але розробляємо креслення для об’єктів за будь-якими технологіями. Вибираючи забудовником «КБК Львів», ви робите інвестицію в благополуччя, отримуючи затишну, надійну і практичну оселю.

Більше arrow-more Менше arrow-less
advices-image

Що необхідно знати перед початком будівництва. "5 порад архітектора"

advices-image-mob
Завантажити БЕЗКОШТОВНО